Только на Циан
19 800 000 ₽
Арт. 127010316 Купить дом в Ессентукской недорого с ремонтом ВОЗМОЖНО!
Продается отдельно стоящий дом площадью 328,1 м2 на земельном участке 20,9 соток.
Дом находится в хорошем районе станицы Ессентукской, недалеко от центральной улицы Этокской, в то же время скрыт от посторонних глаз в тихом и спокойном месте. Развитая инфраструктура, удобная транспортная развязка, рядом остановки общественного транспорта, магазины, школа 1, садики. Удобная транспортная развязка, прекрасное окружение, асфальтированный подъезд к дому.
Двор дома асфальтирован по зонам, на территории фруктовый сад и огород.
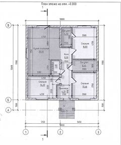
В доме сделан качественный ремонт, удобная и функциональная планировка: кухня - гостиная объединена с просторным залом, три спальные комнаты, два санузла, прихожая. Также под всем домом находится высокий цокольный этаж с отдельным входом (входит в площадь дома), на котором два больших помещения свободного назначения со всеми коммуникациями и котельная.
Земельный участок ровный, практически квадратной формы.
Дом и земельный участок находятся в собственности.
















































































































