


121 150 ₽/м²
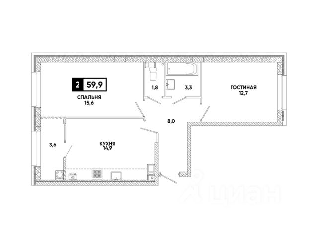
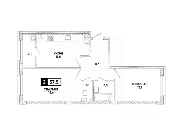
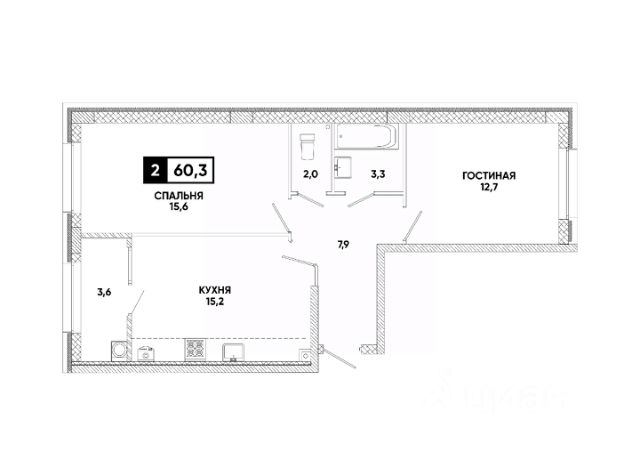
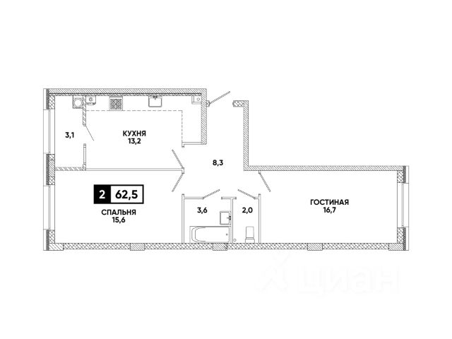
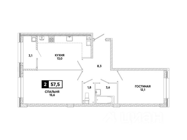
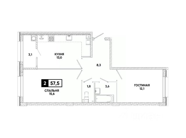
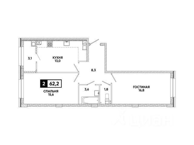
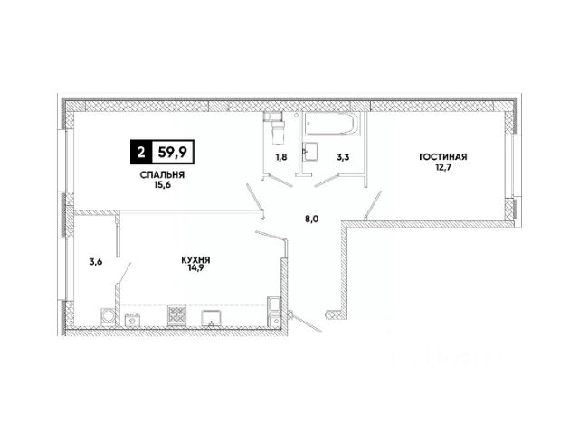
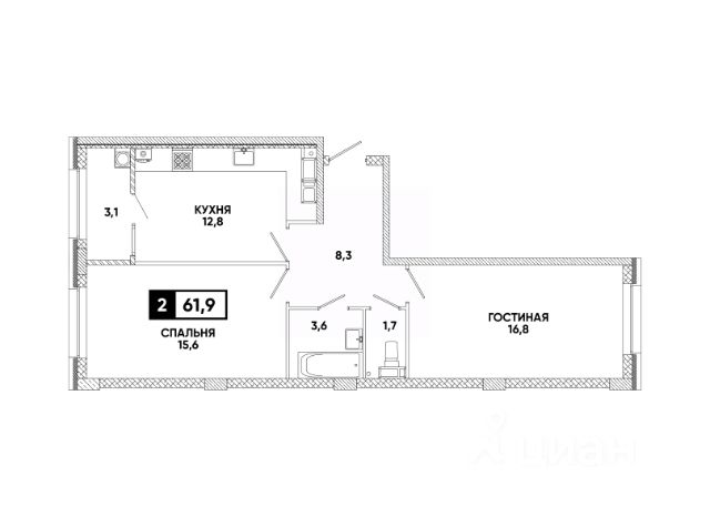
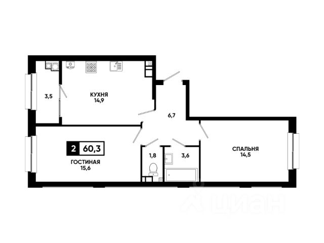
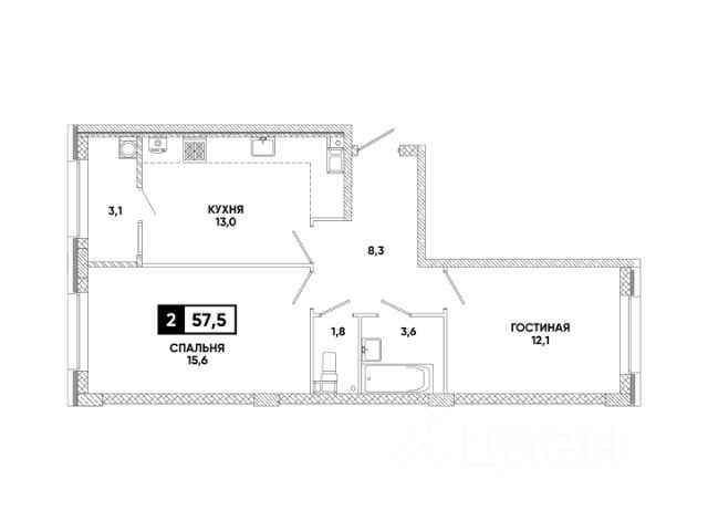
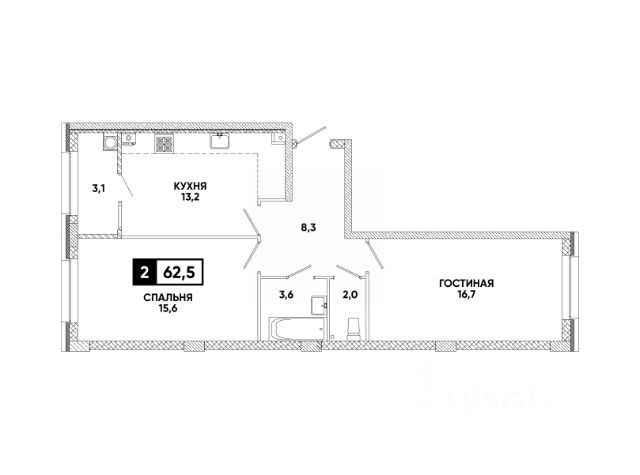
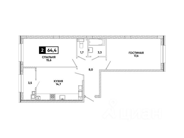
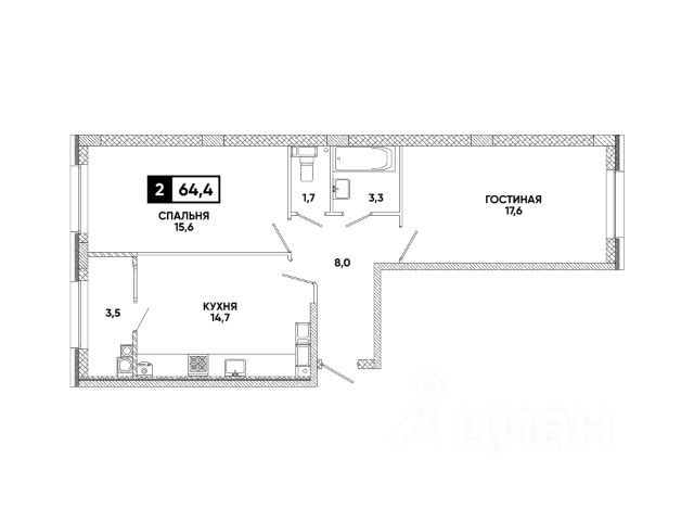
Продается современная 2-комнатная квартира в концептуальном районе "Кварталы 17/77" от федерального застройщика "ЮгСтройИнвест"! Закрытые дворы, высокий уровень безопасности и полностью сформированная инфраструктура в пешей доступности. О квартире: — Продуманная 2-комнатная планировка с возможностью комфортного зонирования; — Светлая гостиная + отдельная спальня; — Большие французские окна 1,8 м — на 30% больше естественного света; — Предчистовая отделка — ровные стены и пол, готовые под чистовой ремонт; — Теплые полы в кухне, прихожей и санузле; — Установлена металлическая дверь, двухкамерные стеклопакеты; — Скрытая проводка, розетки и выключатели уже установлены. Отличный вариант для семейных пар, семей с детьми и тех, кому нужна функциональная двухкомнатная планировка. Подходит и для инвестиций — ликвидный формат и высокий спрос на аренду. О районе "Кварталы 17/77": — Закрытые дворы без машин — безопасно и тихо; — Охрана и видеонаблюдение 24/7; — Современные детские площадки, канатные зоны, городки; — Ландшафтный дизайн: липы, клёны, хвойные, лаванда, гортензии; — Лаунж-зоны, подсветка, прогулочные маршруты в экостиле; — Дизайнерские просторные холлы; — Удобная коммерция на первых этажах: магазины, сервисы, кафе. Преимущества локации: — Полностью развитый район — все в пешей доступности; — Подземные и наземные парковки; — Вентилируемые фасады и архитектурная подсветка; — Панорамное остекление — больше света и ощущение пространства; — Удобная транспортная доступность к ключевым точкам города. Социальные объекты рядом: — 3 детских сада; — Школа на 1550 мест; — Медицинский центр; — Дворец культуры, АйТи-школа; — Торговые центры, зоны отдыха и прогулок. Выгодные предложения от застройщика: — Семейная ипотека от 3,5% — ставка 3,5% на весь срок при первоначальном взносе 50%; — Скидки до 6 000 ₽/м² участникам СВО; — Скидки до 4 000 ₽/м² госслужащим; — Ставка от 6% для АйТи-специалистов; — Скидка 3 000 ₽/м² для сотрудников Сбербанка; — Материнский капитал можно использовать как первый взнос. Хотите планировки и расчет ипотеки? Напишите или позвоните — вышлем планировки, актуальные цены и подберем лучшие условия покупки. Добавьте объявление в избранное, чтобы не потерять! * Рендеры носят иллюстративный характер и демонстрируют возможный вариант оформления квартиры, не являясь ремонтом от застройщика.
































































































































