Мы используем куки-файлы. Соглашение об использовании

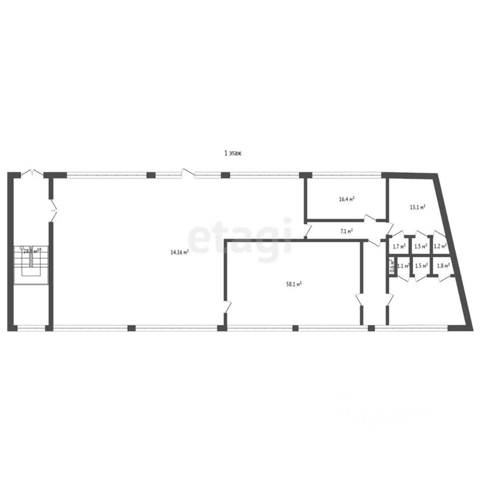
Продается офис, 941,1 м²

Площадь941,1 м²
Этаж2 из 2
СРОЧНО! Продаётся коммерческое помещение свободного назначения в г. Ессентуки в курортной зоне. Общая площадь 941,1 кв.м., три полноценных этажа, один подземный, два наземных. Есть техническая возможность надстроить ещё два этажа. Земля 4 сот. в собственности. На цокольном этаже оборудован хамам и кабинеты свободного назначения, на первом этаже был спортивный зал с оборудованными раздевалками и душевыми, на втором этаже были кабинеты стоматологии, рентген кабинет и кабинеты бьюти-процедур. Данный объект отлично подойдёт как для спа-центра, фитнесса, так и для оборудования гостиницы. Код пользователя: 161821 Номер в базе: 7546994
lock

Войдите или зарегистрируйтесь
для просмотра информации

Просматривайте условия сделки и всю информацию об объекте
Сохраняйте фильтры в поиске и не вводите заново
Доступ к избранному с любого устройства
Неограниченное добавление в избранное
Позвоните автору
Вам ответят на все вопросы
Остались вопросы по объявлению?
Позвоните владельцу объявления и уточните необходимую информацию.
  • Инфраструктура
  • Похожие рядом
  • Общая площадь941,1 м²
Помощь надёжных риелторов
Риелтор партнёр Циан поможет купить или продать любую недвижимость
100 000 000 ₽
1 336 874 $
1 128 122
Цена за метр
106 259 ₽
Налог
НДС включен: 18 032 786 ₽
Агентство недвижимости
Документы проверены
На Циан
4 года
Объектов в работе
более 1000