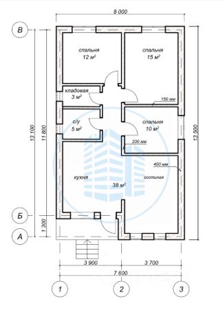
Арт. 108809002 Авалон агентство недвижимости Персональный консультант Ипотека / Мат. Капитал/ Военная ипотека Юр. Сопровождение Индивидуальный проект, эксклюзивное предложение. Земельный участок в собственности. Центральные коммуникации подключены, центральная канализация. Построен с соблюдением строительных норм. Монолитный армированный каркас от фундамента до верхнего этажа; Стены отсевный блок, утепление 5см, декоративная отделка камешковой штукатуркой; Энергосберегающие алюминиевые окна, внешнее покрытие стеклопакета (защита от ультрафиолета и прямых солнечных лучей); Алюминиевая входная дверь. Мягкая кровля, потолок утеплён минеральной ватой 10см. Эргономичная планировка. Площадь без гаража и подвала 220м2. встроенный гараж 35м2, автоматические ворота; три изолированные спальни, одна мастер с санузлом и гардеробной; кухня гостиная с панорамным остеклением и выходом во внутренний двор; подвальное помещение 50м2; Чистый лист под ваш дизайн проект. Отопление, теплые полы, радиаторы, стяжка, штукатурка. В шаговой доступности новый детский сад, остановка общественного транспорта, супермаркет, аптека, новая школа, удобный выезд на Пятигорск и Кисловодск. Парк Победы и Санаторий Виктория с Источником Минеральных вод в 15 мин прогулочным шагом. Купить дом на улице Березовая в городе Ессентуки.

































































































