


117 800 ₽/м²
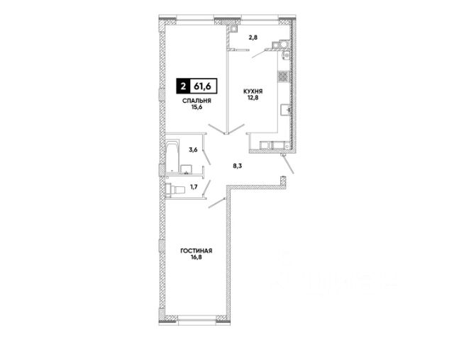
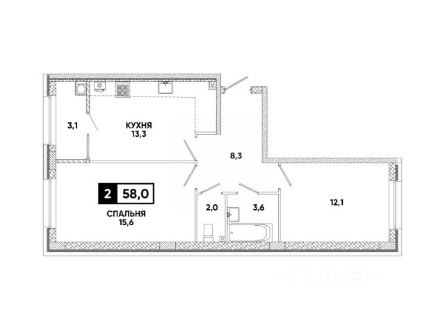
Продаётся стильная и комфортная 2-комнатная квартира в современном районе "Кварталы 17/77", построенном федеральным застройщиком "ЮгСтройИнвест". Закрытые дворы, безопасность, благоустройство и весь необходимый сервис — буквально в нескольких минутах пешком. Преимущества квартиры: — Удобная планировка — просторная гостиная и отдельная спальня; — Французские окна высотой 1,8 м — максимум естественного освещения; — Чистовая подготовка White Box — идеально ровные поверхности под ваш будущий интерьер; — Теплые полы в санузле, кухне и прихожей; — Качественная входная металлическая дверь и двухкамерные стеклопакеты; — Полная скрытая электрика, установлены розетки и выключатели. Отличный выбор для семейных пар и семей с детьми. Формат квартиры востребован также среди инвесторов: ликвидная планировка и высокий спрос на аренду обеспечивают хорошую доходность. О районе "Кварталы 17/77": — Полностью закрытые от машин дворы — безопасно для детей; — Круглосуточное видеонаблюдение и охрана; — Современные игровые зоны, канатные комплексы, спортивные площадки; — Богатый ландшафтный дизайн: от клёнов и лип до хвойных композиций, лаванды и гортензий; — Пространства для отдыха: лаунж-зоны, подсветка, прогулочные дорожки; — Премиальные дизайнерские холлы; — Развитая коммерция на первых этажах — магазины, сервисы, кофейни. Преимущества расположения: Район полностью самодостаточный — всё необходимое рядом; Подземные и наземные парковки — удобные варианты на выбор; Современные фасады с архитектурной подсветкой; Панорамное остекление, благодаря которому квартира выглядит еще светлее; Быстрая доступность основных локаций города. Социальная инфраструктура: — 3 детских сада в районе; — Школа на 1550 учеников; — Медицинский центр; — Дворец культуры, IT-школа, торговые центры; — Парковые и прогулочные пространства поблизости. Актуальные предложения и программы: — Подземный паркинг по специальной цене — 70 000 ₽ при покупке в ипотеку; — Скидка 3 000 ₽/м² для сотрудников Сбербанка; — Семейная ипотека от 6%; — Донорская ипотека — ставка от 6%; — Скидки до 5 000 ₽/м² для участников СВО; — До 4 000 ₽/м² для госслужащих; — IT-ипотека — ставка от 6%; — Исламская ипотека (Мурабаха); — Квартиры с ремонтом от BLOC; — Паркинг — 670 000 ₽, кладовые — от 25 000 ₽/м²; — Материнский капитал можно использовать как первоначальный взнос. Хотите получить планировки и расчет ипотеки? Напишите или позвоните —и мы вышлем варианты планировок, актуальные цены и подберм максимально выгодные условия. Добавьте объявление в избранное — чтобы быстро к нему вернуться!

























































































































