Мы используем куки-файлы. Соглашение об использовании
Помещение свободного назначения, 168 м²

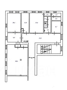
Продается помещение свободного назначения, 168 м²

Площадь168 м²
Этаж2 из 2
Продаётся коммерческое помещение в Кисловодске, расположено на 2 этаже 2-эт.нежилого здания, общая площадь -168 кв.м., потолки 3,80 м, офисная планировка. Из коммуникаций: электроснабжение, холодное водоснабжение, центральная канализация. Парковка открытая на прилегающей территории. Юридически-долевая собственность, поэтому кредитные средства для оплаты не подходят. Рядом расположены: Сбербанк, ПФР, санаторий Солнечный, Администрация города, Музыкальная школа.
lock

Войдите или зарегистрируйтесь
для просмотра информации

Просматривайте условия сделки и всю информацию об объекте
Сохраняйте фильтры в поиске и не вводите заново
Доступ к избранному с любого устройства
Неограниченное добавление в избранное
Позвоните автору
Вам ответят на все вопросы
Остались вопросы по объявлению?
Позвоните владельцу объявления и уточните необходимую информацию.
  • Инфраструктура
  • Похожие рядом
  • Общая площадь168 м²
Естественная вентиляция
Сигнализация
Помощь надёжных риелторов
Риелтор партнёр Циан поможет купить или продать любую недвижимость
16 800 000 ₽
226 122 $
189 726
Цена за метр
100 000 ₽
Налог
НДС включен: 3 029 508 ₽
Агентство недвижимости
Документы проверены