


129 559 ₽/м²
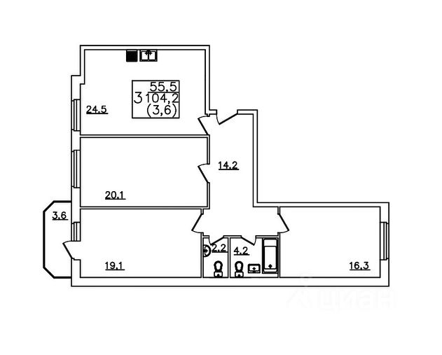
Продаётся 3-комнатная квартира в строящемся доме (Дом 1), срок сдачи: II-кв. 2026, общей площадью 104.2 кв.м., на 5 этаже. Многоквартирный жилой дом "Алые паруса" по ул. Ессентуксуая 33, со встроееными нежилыми, коммерческими помещениями на первом этаже. Строительство жилого дома ведется в центре престижного микрорайона "Бештау" г.Пятигорска. Отличительными преимуществами дома являются: - концепция "Двор без машин": отсутствует проезжая часть внутри комплекса, снижение шума, отсутствие загазованности; - концепция " Двор для своих": территория закрыта от посторонних, доступ во двор осуществляется по PIN-коду. Видеонаблюдение по периметру и на территории; - концепция "Максимальное озеленение" : внутренняя территория - мини-парк Алые Паруса. Вместо проезжей части внутри комплекса размещается детский игровой комплекс, спортивная площадка, площадки отдыха, прогулочные зоны; - концепция "Климат-контроль": автоматическое погодозависимое отопление для создания комфортного микроклимата; - концепция "Бытовая безопасность": отсутствие газовых взрывоопасных приборов в квартире. Котел вынесен на кровлю- увеличенная полезная площадь на кухне, удобство обслуживания и эксплуатации, повышееная пожаробезопасность, безопасность для здоровья (отсутствие выделений токсичных веществ, не сжигается кислород), пониженный тариф на электроэнергию. -отделка фасада - керамический облицовочный кирпич, природный камень, декоративное освещение; - бесшумные скоростные лифты; - высота потолков 2,9 метра; - панорамное остекление, ламинированные стеклопакеты; - максимально развитая городская инфраструктура в шаговой доступности; Строительство ведется по 214-ФЗ. Доступна семейная и IT ипотеки.























































































