Продаётся 1-комнатная квартира в строящемся доме (Дом 1/12), срок сдачи: I-кв. 2027, общей площадью 41 кв.м., на 7 этаже. Жилой квартал "Красный металлист" грамотно интегрирован в городскую среду, без вмешательства в исторический облик улиц. Здесь можно в полной мере почувствовать, почему Ставрополь находится в рейтингах самых благоустроенных, зелёных и красивых городов России. В двух шагах - уютная каштановая аллея, проходящая через весь городской центр, - живописный маршрут для пеших прогулок до Центрального парка, Крепостной горы и к памятнику Ангелу-хранителю. Внутри самого квартала для отдыха жителей тоже раскинется благоустроенный бульвар в традициях южных городов.
Монолитные дома меньше подвержены усадке, могут простоять без капитального ремонта больше ста лет, а стены в них лучше удерживают тепло. Всё благодаря цельному железобетонному каркасу с заполнением из мелких бетонных блоков и утеплителя.
Жилой квартал "Красный металлист" - гармоничный ансамбль с городским пространством и окружающей средой. Во время создания проекта архитекторы учитывали не только особенности ландшафта и тенденции в строительстве, но и характер Ставрополя.Монолит переменной этажности, нестандартная, ненавязчивая архитектурная мысль, а также большие окна в квартирах и подъездах придают домам лёгкости и невесомости. Современные дома в совокупности с удобными подъездами и закрытыми дворами станут единым эргономичным комплексом для комфортной городской жизни.
Жилой квартал "Красный металлист" - живописное, комфортное и безопасное пространство для семейной жизни. Для вашего удобства, в рамках федеральных целевых программ планируется строительство детского сада и школы.
В жилом квартале "Красный металлист" - тихие и чистые дворы, в которых дети и их родители смогут почувствовать себя спокойно и уютно. Здесь много зелени, есть места для прогулок и детские площадки.
В центре Ставрополя сосредоточена вся необходимая современному человеку инфраструктура. Впрочем, во многих случаях жителям квартала "Красный металлист" можно будет не покидать его пределы, ведь на первых этажах жилых зданий разместятся магазины с товарами первой необходимости, центры бытовых услуг, рестораны и банки.
Панорамные окна из 4-камерного теплого алюминия и высокие потолки (не менее 2,88) - простор и свет в каждой комнате вашей квартиры. В однокомнатных и двухкомнатных квартирах предусмотрена одна корзина для кондиционера, в трехкомнатных - две.
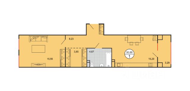
Планировки квартир в домах жилого квартала "Красный металлист" дают простор для фантазии, сохраняя при этом выверенную эргономику помещений. Для того, чтобы ремонт начался быстрее, квартиры сдаются в предчистовой отделке со стяжкой пола и оштукатуренными стенами.
Тёплые полы и индивидуальное отопление в каждой квартире подарят комфорт в холодное время года. Вы сможете сами регулировать не только температуру, но и свои расходы на отопление.
Для того, чтобы вы получили удовольствие от дома уже с порога, вход в него начинается с красивого и функционально Продам 1-комнатную квартиру с отделкой в районе Октябрьский в городе Ставрополь.