Мы используем куки-файлы. Соглашение об использовании

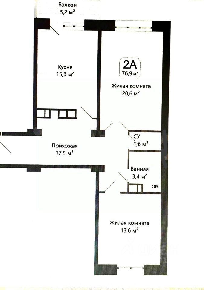
Продается 2-комн. квартира, 76 м²

Общая площадь76 м²
Этаж10 из 14
Год сдачи2021
ДомСдан
ОтделкаЧерновая
Продаётся 2-комнатная квартира в сданном доме (Радужный берег), срок сдачи: III-кв. 2021, общей площадью 76 кв.м., на 10 этаже. Жилой комплекс "Радужный берег" расположен в тихом уютном микрорайоне Пятигорска в шаговой близости от парковой зоны реки Подкумок. ЖК "Радужный берег"класса " Комфорт " введён в эксплуатацию во втором квартале 2021 года. При строительстве использовались современные, качественные материалы. Четырнадцати этажный монолитно- кирпичный дом с газоблочными межкомнатными перегородками. Произведена черновая отделка: газовый двухконтурный котёл, установлены тепловые радиаторы, проведена электропроводка, стяжка, установлены счётчики: электро, газовый, водяной. Высота потолков- 2,58 м Есть варианты квартир с ремонтом от застройщика. Дом построен по 214- ФЗ. Квартиры от застройщика можно преобрести по всем видам льготной ипотеки. Придомовая территория оснащена парковочными местами, детской и спортивный площадками. Спальный район с хорошо развитой инфраструктурой: школа, детский сад, ледовый дворец, рынок, продуктовые супермаркеты, остановки общественного транспорта.

О квартире

Тип жилья

Новостройка

Общая площадь

76 м²

Высота потолков

2,58 м

Отделка

Черновая

О доме

Количество лифтов

2 пассажирских

Тип дома

Монолитно-кирпичный

Пандус

Есть

Понравилась квартира — узнайте о ней больше

Застройщик ответит на все вопросы

Варианты отделки в ЖК

  • Чистовая
  • Черновая
Похоже на то, что вы ищете?

Акции в ЖК «Радужный берег»

Узнайте про персональные условия и дополнительные скидки при покупке квартиры у застройщика

Материнский капитал

Ипотечный калькулятор
  • Базовая
  • Семейная
  • ИТ-ипотека
  • 20%
  • 30%
  • 40%
  • 50%
лет
  • 10 лет
  • 20 лет
  • 30 лет
Загружаем предложения от застройщика и банков

Расположение

Корпус проверен наш.дом.рф
Обновлено 23 февраля 2025
  • Нет в реестре проблемных объектов
  • Застройщик не банкрот

Ещё квартиры в жилом комплексе

4 квартиры в продаже · Сдан
Агентство недвижимости
ВЕРШИНА
  • 2 года 4 месяца на Циане
  • 8 700 000 ₽
    Цена за метр
    114 474 ₽/м²
    Условия сделки
    свободная продажа
    Агентство недвижимости
    ВЕРШИНА