Мы используем куки-файлы. Соглашение об использовании
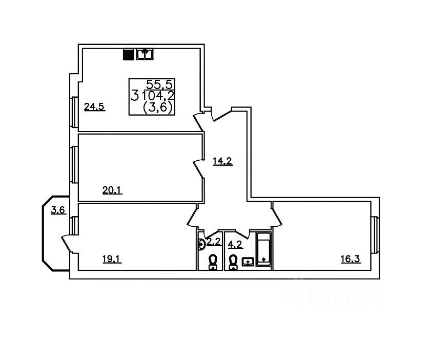
Общая площадь104,2 м²
Жилая площадь55,5 м²
Площадь кухни24,5 м²
Этаж11 из 12
Год сдачи2026
ДомНе сдан
ОтделкаБез отделки
Жилой дом "Алые паруса" представляет собой монолитно-кирпичное здание. Из окон комплекса открывается вид на г. Бештау (1404м), г. Машук (993 м), г. Эльбрус (5642 м), Главный Кавказский хребет. Застройщик придерживается определённых концепции: "Двор без машин": отсутствует проезжая часть внутри комплекса - повышенная безопасность жителей. увеличенная территория комфорта, снижение шума, отсутствие загазованности. "Двор для своих": территория закрыта от посторонних, доступ во двор осуществляется по PIN-коду. Круглосуточное видеонаблюдение по периметру и на территории. "Максимальное озеленение": внутренняя территория - мини-парк "Алые паруса". Вместо проезжей части внутри комплекса размещается детский игровой комплекс "Алые паруса", спортивная площадка, площадки отдыха, прогулочные зоны. "Климат контроль": автоматическое погодозависимое отопление для создания комфортного микроклимата. "Бытовая безопасность": отсутствие газовых взрывоопасных приборов в квартире. Котёл вынесен на кровлю - увеличенная полезная площадь на кухне, удобство обслуживания и эксплуатации, повышенная пожаробезопасность, безопасность для здоровья (отсутствуют выделения токсичных веществ, не сжигается кислород), пониженный тариф на электроэнергию.

О квартире

Тип жилья

Новостройка

Общая площадь

104,2 м²

Жилая площадь

55,5 м²

Площадь кухни

24,5 м²

Высота потолков

2,85 м

Санузел

1 раздельный

Балкон/лоджия

1 лоджия, 1 балкон

Отделка

Без отделки

О доме

Количество лифтов

1 пассажирский

Тип дома

Монолитный

Пандус

Есть

Понравилась квартира — узнайте о ней больше

Застройщик ответит на все вопросы

Похоже на то, что вы ищете?

Акции в ЖК «Алые паруса»

Узнайте про персональные условия и дополнительные скидки при покупке квартиры у застройщика
Ипотечный калькулятор
  • Базовая
  • Семейная
  • ИТ-ипотека
  • 20%
  • 30%
  • 40%
  • 50%
лет
  • 10 лет
  • 20 лет
  • 30 лет
Загружаем предложения от застройщика и банков

Расположение

Корпус проверен наш.дом.рф
Обновлено 15 апреля 2026
  • Нет в реестре проблемных объектов
  • Застройщик не банкрот
  • Есть эскроу счёт
  • Актуальные фото стройки

Ещё квартиры в жилом комплексе

78 квартир в продаже · Сдача в 2 кв. 2026
Агентство недвижимости
Магазин новостроек
  • 5 лет 2 месяца на Циане
  • 13 500 000 ₽
    Цена за метр
    129 559 ₽/м²
    Условия сделки
    свободная продажа
    Агентство недвижимости
    Магазин новостроек