Мы используем куки-файлы. Соглашение об использовании
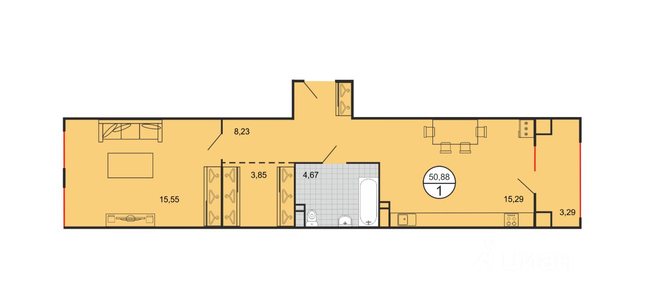
Общая площадь50,88 м²
Этаж4 из 4
Год сдачи2026
ДомНе сдан
ОтделкаПредчистовая
Продаётся 1-комнатная квартира в строящемся доме (Литера 3), срок сдачи: II-кв. 2026, общей площадью 50.88 кв.м., на 4 этаже. Новый жилой комплекс "по пр. Чапаевский" от застройщика "ГК Стройград" расположен по адресу: г. Ставрополь, Чапаевский проезд.

О квартире

Тип жилья

Новостройка

Общая площадь

50,88 м²

Высота потолков

2,7 м

Отделка

Предчистовая

О доме

Тип дома

Монолитно-кирпичный

Пандус

Есть

Понравилась квартира — узнайте о ней больше

Застройщик ответит на все вопросы

Отделка квартиры

Предчистовая — остаётся установить сантехнику, розетки, двери и навести красоту: поклеить обои и уложить на пол покрытие

Варианты отделки в ЖК

  • Под ключ
  • Предчистовая
Похоже на то, что вы ищете?

Акции в ЖК «Дыхание»

Узнайте про персональные условия и дополнительные скидки при покупке квартиры у застройщика

Материнский капитал

Ипотечный калькулятор
  • Базовая
  • Семейная
  • ИТ-ипотека
  • 20%
  • 30%
  • 40%
  • 50%
лет
  • 10 лет
  • 20 лет
  • 30 лет
Загружаем предложения от застройщика и банков

Расположение

Корпус проверен наш.дом.рф
Обновлено 2 апреля 2026
  • Нет в реестре проблемных объектов
  • Застройщик не банкрот
  • Есть эскроу счёт
  • Актуальные фото стройки

Ещё квартиры в жилом комплексе

190 квартир в продаже · Сдача в 2—4 кв. 2026
Агентство недвижимости
Магазин новостроек
  • 5 лет 2 месяца на Циане
  • 5 291 520 ₽
    Цена за метр
    104 000 ₽/м²
    Условия сделки
    свободная продажа
    Агентство недвижимости
    Магазин новостроек