


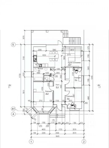
Есть ли параметры у качества и красоты? Оказывается, есть, особенно если речь идет об элитном доме. Светлый, просторный, уютный, дом Вашей мечты. Экологически чистый, бесшумный район. Сам дом выполнен из качественных материалов, продуманная и функциональная планировка. На первом этаже нас встречает просторная прихожая, плавно переходящая в холл, большой гостиный зал, спальня, санузел, уютная и просторная кухня-столовая с выходом на террасу, плавно переходящую в зону бассейна с сауной. На втором этаже расположилась мастер спальня с отдельной и вместительной гардеробной и совмещенным санузлом, а также две отдельные просторные спальни и санузел. В цокольном этаже расположена котельная с постирочной зоной, спортивный зал с зоной отдыха, большая гардеробная и кладовая. Двор выложен брусчаткой, имеется большой навес на две машины, въездные автоматические ворота. Задний двор с мангальной зоной. Уличное освещение, авто-полив, подобранный ландшафтный дизайн создает атмосферу единения с природой и позволяет забыть о ежедневной суете. Удобная транспортная и шаговая доступность до главных достопримечательностей города Ставрополя. В шаговой доступности продуктовые гипермаркеты, школы, детские сады, а также культурный центр города. Приглашаем ВАС увидеть все плюсы этого дома своими глазами. Собственный дом, в одном из спокойнейших кварталов города - это предложение для людей, стремящихся к максимальной гармонии во всех жизненных аспектах.
























































































