


102 300 ₽/м²
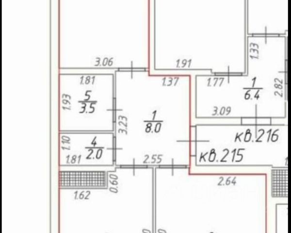
Продаётся 3-комнатная квартира в строящемся доме (Серова, 468/3), срок сдачи: IV-кв. 2025, общей площадью 102.5 кв.м., на 9 этаже. СТАРТ ПРОДАЖ КЛУБНОГО ДОМА "СЕРОВ" Клубный Дом "СЕРОВ" - это дом элит класса с небольшим количеством квартир, эксклюзивным дизайном и идеальным расположением Клубный Дом "СЕРОВ" расположен в Ленинском районе (204 квартал) города Ставрополя. Срок сдачи дома 2-3 квартал 2025 года. Квартиры продаются напрямую от застройщика и БЕЗ КОМИССИИ Презентация дома. 12 этажей, 4 подъезда. Подземный паркинг на 60 машиномест. Индивидуальное отопление. В каждой квартире установлен двухконтурный котел. Предчистовая отделка. Высота потолков 3.0 м. Тёплые полы (Кухня, сан.узел и коридор) Оконная система EXPROF 70 мм., пятикамерный профиль и двойной контур уплотнения. Входные сейфовые металлические двери TOREX. Грузопассажирские и пассажирские лифты фирмы OTIS. Закрытая территория, консьерж, видеонаблюдение. Умная домофония, интернет на территории дома. Велопарковка и колясочная в каждом подъезде. Жилой комплекс строится из качественных и долговечных материалов с отличной шумоизоляцией. В шаговой доступности вся необходимая инфраструктура (детский сад, школа, зоны отдыха, магазины). Своя остановка маршрутных транспортных средств перед домом. Строительство ведётся по 214-ФЗ Наиболее выгодная цена на этапе строительства. Успейте забронировать квартиру мечты напрямую от застройщика. Записывайтесь на бесплатную экскурсию, посетив которую, вы можете подробно ознакомиться с планировкой вашей квартиры и спланировать ремонт или дизайн интерьера, чтобы в будущем создать идеальное пространство, отражающее ваши предпочтения. Способ оплаты: При покупке квартиры от застройщика, Вы можете использовать все популярные сейчас способы: 100% оплата. Когда у Вас есть вся сумма в наличии. Рассрочка. Первоначальный взнос и график платежей определяем индивидуально. Ипотека. Сотрудничаем с ведущими банками России и поможем подобрать выгодную ипотечную программу. Материнский капитал. Можно использовать на участие в долевом строительстве или на погашение ипотеки. Если у Вас возникли вопросы, позвоните нам. Менеджер все подробно расскажет и поберет для Вас лучший вариант. Бронирование квартиры совершенно бесплатно!
































































